RevitCity.com Logo

Home  |  Forums  |  Downloads  |  Gallery  |  News & Articles  |  Resources  |  Jobs  |  FAQ  |  SearchSearch  |  Join  |  LoginLogin

Welcome !

26 Users Online (24 Members): Show Users Online - Most ever was 626 - Mon, Jan 12, 2015 at 2:00:17 PM

 

Forums

Forums >> Revit Building >> Technical Support >> Furniture from lower level viewable in upper level

Search this ThreadSearch this Thread | Page 1 of 1 |

Tue, Apr 15, 2008 at 2:40:15 AM | Furniture from lower level viewable in upper level

#1

torstenk


active

Joined: Tue, Oct 2, 2007
28 Posts
No Rating


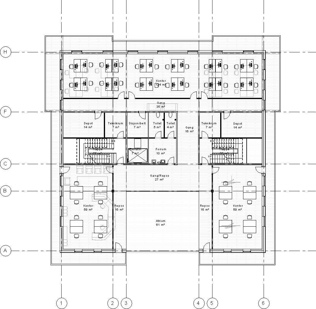
Hi all. Im having some problems with my cutplane. It is on my 1. story view where i can see the furniture i placed on the lower level.  But my cutplane is: Top = 2300 and Cutplane  = 1200. The others are 0. So why do i see the furniture in the lower levels?

See attached pic



Attached Images

35568_pic1.jpg

This user is offline

 

Tue, Apr 15, 2008 at 8:37:06 AM | Furniture from lower level viewable in upper level

#2

JAMESHGRIMES


site moderator|||
JAMESHGRIMES Avatar

Joined: Fri, Apr 14, 2006
584 Posts
4.5 Stars: 10 Votes


Go to Vew Properties and turn the Underlay Parameter to None.

This user is offline

 

Search this ThreadSearch this Thread | Page 1 of 1 |



Similar Threads

Thread/Thread Starter

Forum

Last Post

Replies

LOCKING LOWER LEVEL IN UNDERLAY

Revit Structure >> Technical Support

Tue, Mar 6, 2007 at 2:37:10 PM

2

Showing upper level with dashed line?

Revit Building >> Technical Support

Fri, Oct 22, 2010 at 12:20:24 PM

2

Window Family not cutting correctly

Revit Building >> Technical Support

Wed, Aug 11, 2010 at 11:54:51 AM

0

REVIT 15: Can not place rooms on upper and lower levels....

Revit Building >> Technical Support

Tue, Feb 12, 2019 at 4:58:36 PM

8

Can't copy furniture group to different level view

Revit Building >> Technical Support

Thu, Jun 7, 2018 at 10:43:54 AM

7

Site Stats

Members:

2161655

Objects:

23325

Forum Posts:

152479

Job Listings:

3

Sponsored Ads

Home | Forums | Downloads | Gallery | News & Articles | Resources | Jobs | Search | Advertise | About RevitCity.com | Link To Us | Site Map | Member List | Firm List | Contact Us

Copyright 2003-2010 Pierced Media LC, a design company. All Rights Reserved.

Page generation time: 0.2937

Login

User Name:

Password:

Remember Me  

Forgot Password?

Search Forums

Advanced Search

Search Forums

Advanced Search


Clear Highlights


Clear Highlights