|
|
|
Home | Forums |
Downloads | Gallery |
News & Articles | Resources |
Jobs | FAQ |
| Join |
Welcome !
|
59 Users Online (57 Members):
Show Users Online
- Most ever was 626 - Mon, Jan 12, 2015 at 2:00:17 PM |
Forums
|
Forums >> Revit Building >> Technical Support >> need help with dormer opening
|
|
|
active
Joined: Mon, Nov 19, 2007
3 Posts
 |
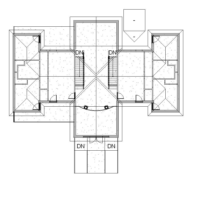
i'm a student at UNL and i've been working on revit for two years now and i'm currently working on this multiplex and everything is going smoothly untill i got to the roof. As you can see from the picture bellow i need to put a dormer opening because the main roof is running straight through the atrium. I've read a few of diagrams on how to draw an atrium but i still can't do it. can you guys help me. thanks
|
This user is offline |
|
 | |
|
|
active
Joined: Mon, Nov 19, 2007
3 Posts
 |
oh yeah i forgot i'm using revit architecture 2008
|
This user is offline |
|
 |
|
site moderator|||

Joined: Fri, Feb 10, 2006
1874 Posts
 |
you can use the techniques discussed in this tutorial to solve your problem by editing the roof sketch. Which i think will be a better solution than cutting away the extra roof. http://www.cadclips.com/downloads/CADCLIP-REV-VARYING-ROOF-PLATES.wmv HTH
-----------------------------------
best regards, coreed,aia bmpArchitects,Inc. "Revit has to be implemented, Not installed." Long Live Revit |
This user is offline |
|
 |
 |
Similar Threads |
|
Dormer Opening Not Defined? |
Revit Building >> Technical Support
|
Wed, Feb 23, 2011 at 7:53:40 AM
|
0
|
|
Curved Dormer Roof |
Revit Building >> Technical Support
|
Tue, Feb 15, 2011 at 1:31:57 PM
|
11
|
|
Barrel vault dormer opening |
Revit Building >> Technical Support
|
Thu, Jun 21, 2007 at 2:22:49 PM
|
10
|
|
Room bounding in a dormer. |
Community >> Newbies
|
Fri, Nov 8, 2013 at 2:57:00 PM
|
7
|
|
DORMER OPENING |
Revit Building >> Technical Support
|
Thu, Mar 29, 2007 at 1:34:18 PM
|
3
|
 |
|
Site Stats
Members: | 2161655 | Objects: | 23325 | Forum Posts: | 152479 | Job Listings: | 3 |
|